EPC Desalination Administrative Building

Location:

Region IV Coquimbo

Client:

Minera Los Pelambres

Scope:

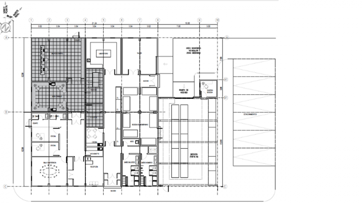
Construction details for the administrative building are as follows:

– Development of engineering, architecture, structure, electricity, air conditioning, and sanitation works.
– Manufacture of modules and elements necessary for building assembly.
– Modular interior completion.
– Functional design of warehouses.
– Supply, installation, and certification of warehouse equipment.

Service:

EPC Project, Auxiliary Building

Infrastucture: